
電纜橋架各種彎頭配件一般都是在廠家預訂好的,在現場做的缺點一是不美觀,二是不耐用(特別是噴涂及熱浸鋅處理的),三是費工時,特別是有的項目監理是不允許在現場加工的,所以通常是用戶提前按施工圖紙出好清單,由廠家訂制好后再直接進行安裝。

電纜橋架安裝過程中,用到的彎頭一般有三種:一種是水平彎,一是垂直上下彎,還有一種是“之”字彎。以下舉例說明這些彎頭制作方法及公式:例:400×150的橋架做45°“之”字彎從橋架側面取15cm×0.8在橋架底部畫點將這段距離等分,然后三個點連接就成一個45°的等腰三角形(另一邊用同一方法),然后將這個三角切掉就形成一個45°彎,然后再用要做的高度×1.41為最里邊的頂點再畫三角形,方向與前面那個相反,做出來就是一個45°之字彎。90°彎是取要做的那一面的2倍畫三角,例如400×150做水平彎頭,則取400×2畫三角切掉就行了,如果要做垂直彎頭則取150×2。
總結出來的公式:比如45度的坡度彎頭,你只要記住這句話就知道怎么做了“爬坡45度,橋架高度乘以0.8中分劃三條線為一個彎,斜邊是爬坡高度乘以1.41,30度是橋架高度乘以0.8除以45乘以30中分劃三條線為一個彎,斜邊是爬坡高度乘以2水平90度彎是橋架寬度乘以0.8中分劃線,斜邊(內邊)600以上200乘以1.41 600以下100乘以1.41”。
以下是圖解橋架彎頭做法:
一、單個彎頭的制作方法:

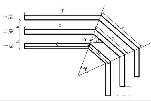
二、多層等間距等高電纜橋架任意角彎頭制作方法

制作方法及步驟:
本圖的角α值同“一”中角α值;本圖的b值與“一”中的b值不同,為層間距值。
1、制作第一層彎頭:
第一層兩個彎頭的做法同“一”中彎頭的做法,兩個彎頭間距a值由現場確定,但需滿足電纜彎曲半徑的要求。
2、制作第二層彎頭:
(1)計算第二層橋架第一個彎頭的定位尺寸e:首先量出第一層橋架定位尺寸d值,則e=d+btg1/2α式中:b為層間距,角α值同“一”中角α值
(2)依照“一”的方法制作第二層彎頭的第1個切口α;
(3)計算兩個彎頭間距c值:c=2btg1/2α式中:b為層間距,a為第一層橋架兩個彎頭的間距
(4)依照“一”的方法制作第二層彎頭的第2個切口α;
(5)計算補償尺寸h:h=2 btg1/2α
3、制作第三層彎頭:
制作方法同第二層彎頭f=e+btg1/2α,g=2btg1/2α+c注:多列等間距等寬橋架任意角彎頭的制作方法與多層等間距等高橋架任意角彎頭的制作方法相同。
三、多層“之”形彎頭的作法:
與“二”類似,只是a、c、g值相等,所切的兩個α角在橋架的兩邊。
